2630 and 2680 Skymark Avenue is a prominent two tower Class A office complex in the Airport Corporate Centre. The property has been recently revitalized with upgraded lobbies, washrooms, elevators, and elevator lobbies for a modern, welcoming tenant experience.

VIEW AVAILABILITIES

<p class="text-size-title-64"><span class="text-size-title-64"><strong>FIRST IMPRESSIONS MATTER.</strong></span></p> at Skymark Avenue - 2630 - 2680 Skymark Ave
Title at Skymark Avenue - 2630 - 2680 Skymark Ave
  • Amazing on-site & area amenities

  • Unique outdoor amenity & game space

  • Immediate highway access

  • Renforth MiWay / BRT station

  • Skymark eatery on-site

  • Workfit by Crown on-site

  • Abundant surface parking & EV stations

  • Minutes from Pearson International Airport

<p class="text-size-title-64" textalign="left" style="text-align: left"><span class="text-size-title-64"><strong>EVERYTHING HERE.</strong></span></p> at Skymark Avenue - 2630 - 2680 Skymark Ave
Title at Skymark Avenue - 2630 - 2680 Skymark Ave

Located in the Airport Corporate Centre - one of the most convenient locations in the GTA West node - 2630 and 2680 Skymark is moments from highways, transit lines and amazing amenities and conveniences, including restaurants, fitness centres, banks, hotels and parks. Only 10 minutes from Toronto’s Pearson International Airport, 2630 and 2680 Skymark’s location puts it in a convenient position for business travelers.

<p class="text-size-header-32"></p> at Skymark Avenue - 2630 - 2680 Skymark Ave

Skymark provides tenants with the sustainable and efficient office environment possible by utilizing industry leading best practices to increase the building’s performance while reducing its environmental footprint.

BOMA BEST Silver

Our buildings, certified with BOMA 360, BOMA COE, and BOMA Best, excel in operational excellence, sustainability, and tenant well-being. These certifications guarantee energy efficiency, lower utility costs, improved air quality, and a healthier workspace. Together, they reflect our commitment to creating efficient, sustainable environments that enhance tenant satisfaction, productivity, and environmental responsibility.

BOMA Toby

The TOBY Award recognizes excellence in building management, tenant relations, sustainability, and operations. It highlights a commitment to high-quality workspaces, ensuring a well-managed, efficient, and tenant-focused environment.

Fitwel Certification

This certification measures how effectively a building promotes health and wellness, supporting tenant wellbeing and strengthening employee performance, retention, and recruitment. It emphasizes user experience and overall environmental quality to create a healthier, more comfortable workplace.

LEED Gold

This certification highlights buildings that prioritize sustainability and occupant well-being through enhanced air quality, natural light, and high-performance design. It reflects our commitment to creating comfortable spaces that reduce environmental impact while supporting a healthier experience for tenants and the planet.

<p class="text-size-header-32" textalign="center" style="text-align: center"></p><p class="text-size-header-32" textalign="center" style="text-align: center"></p><p class="text-size-header-32" textalign="center" style="text-align: center"></p><p class="text-size-header-32" textalign="center" style="text-align: center"></p> at Skymark Avenue - 2630 - 2680 Skymark Ave

The Connect by Crown mobile app gives tenants on-demand access to amenities, communicate with property management, and the office community.

TENANT LOGIN

<p class="text-size-header-32" textalign="center" style="text-align: center"><strong>Take control of your workday.</strong></p> at Skymark Avenue - 2630 - 2680 Skymark Ave
Overview Size Condition Lease Type Availability Asking Rent Media Gallery
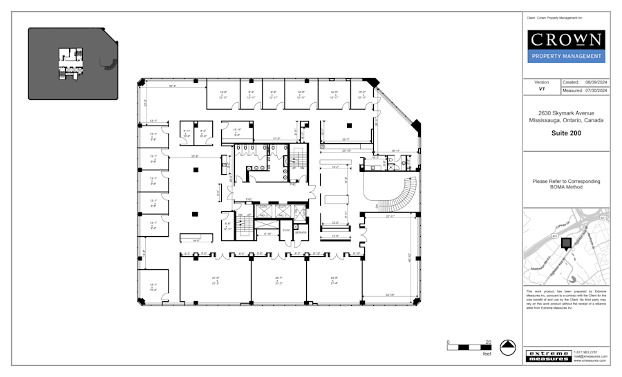
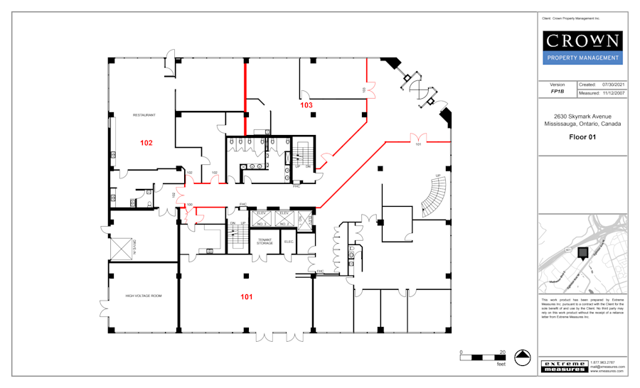
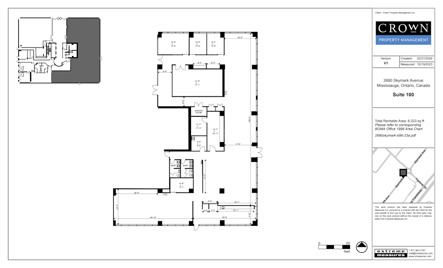
Floor plan - Partial 1st Floor, Suite 100 - Skymark Avenue - 2630 - 2680 Skymark Ave

Partial 1st Floor, Suite 100

  • 55
8,323 sf pre-existing direct
Now
$22.50 sf/yr View Details
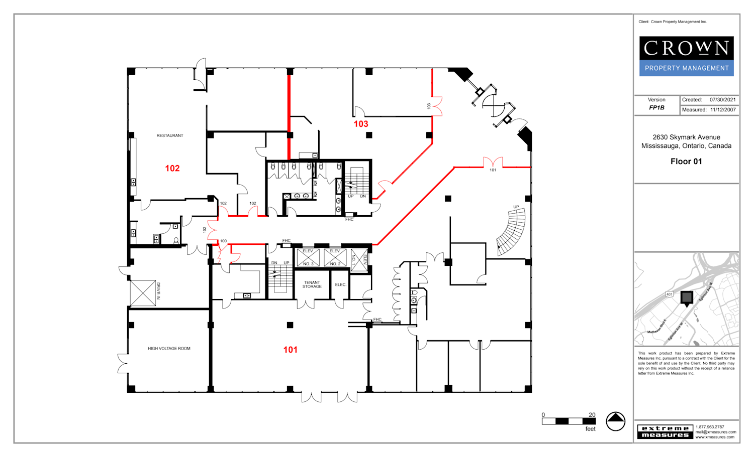
Listing image - Partial 1st Floor, Suite 101 - Skymark Avenue - 2630 - 2680 Skymark Ave

Partial 1st Floor, Suite 101

  • 5,568 - 31,850 sf
  • 37
5,568 sf pre-existing direct
Now
$19.50 sf/yr View Details
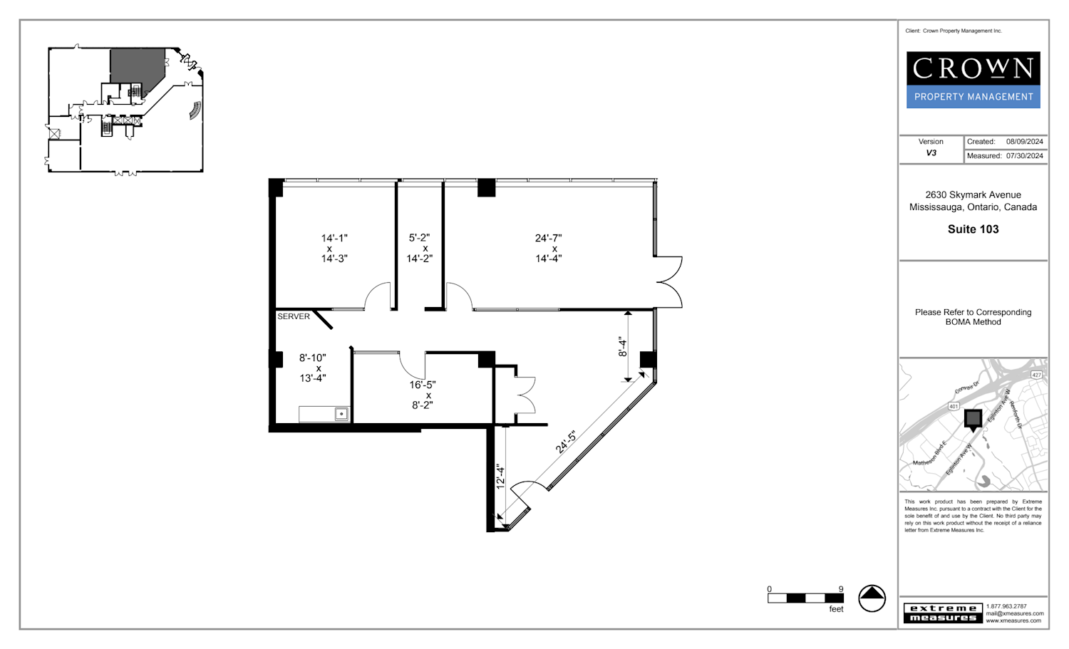
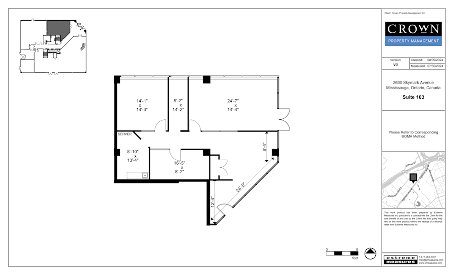
Listing image - Partial 1st Floor, Suite 103 - Skymark Avenue - 2630 - 2680 Skymark Ave

Partial 1st Floor, Suite 103

  • 1,518 - 31,850 sf
  • 10
1,518 sf pre-existing direct
Now
$19.50 sf/yr View Details
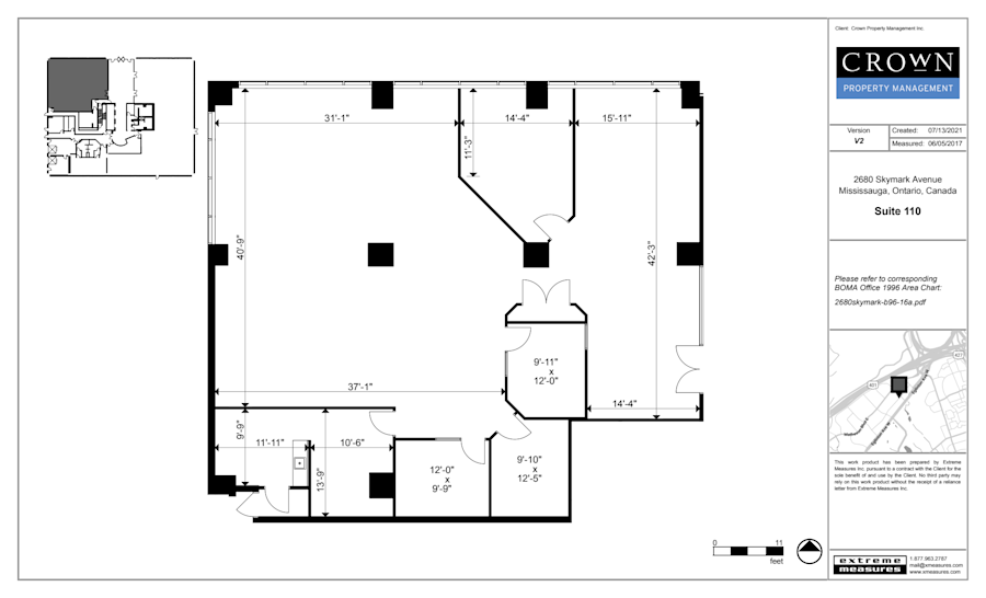
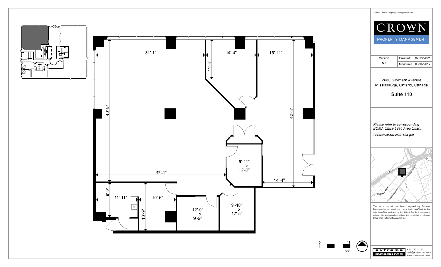
Listing image - Partial 1st Floor, Suite 110 - Skymark Avenue - 2630 - 2680 Skymark Ave

Partial 1st Floor, Suite 110

  • 24
3,553 sf pre-existing direct
Now
$22.50 sf/yr View Details
Listing image - Entire 2nd Floor, Suite 200 - Skymark Avenue - 2630 - 2680 Skymark Ave

Entire 2nd Floor, Suite 200

  • 13,104 - 31,850 sf
  • 87
13,104 sf pre-existing direct
Now
$19.50 sf/yr View Details
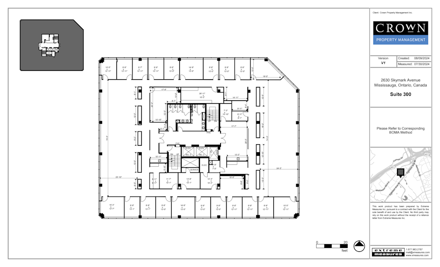
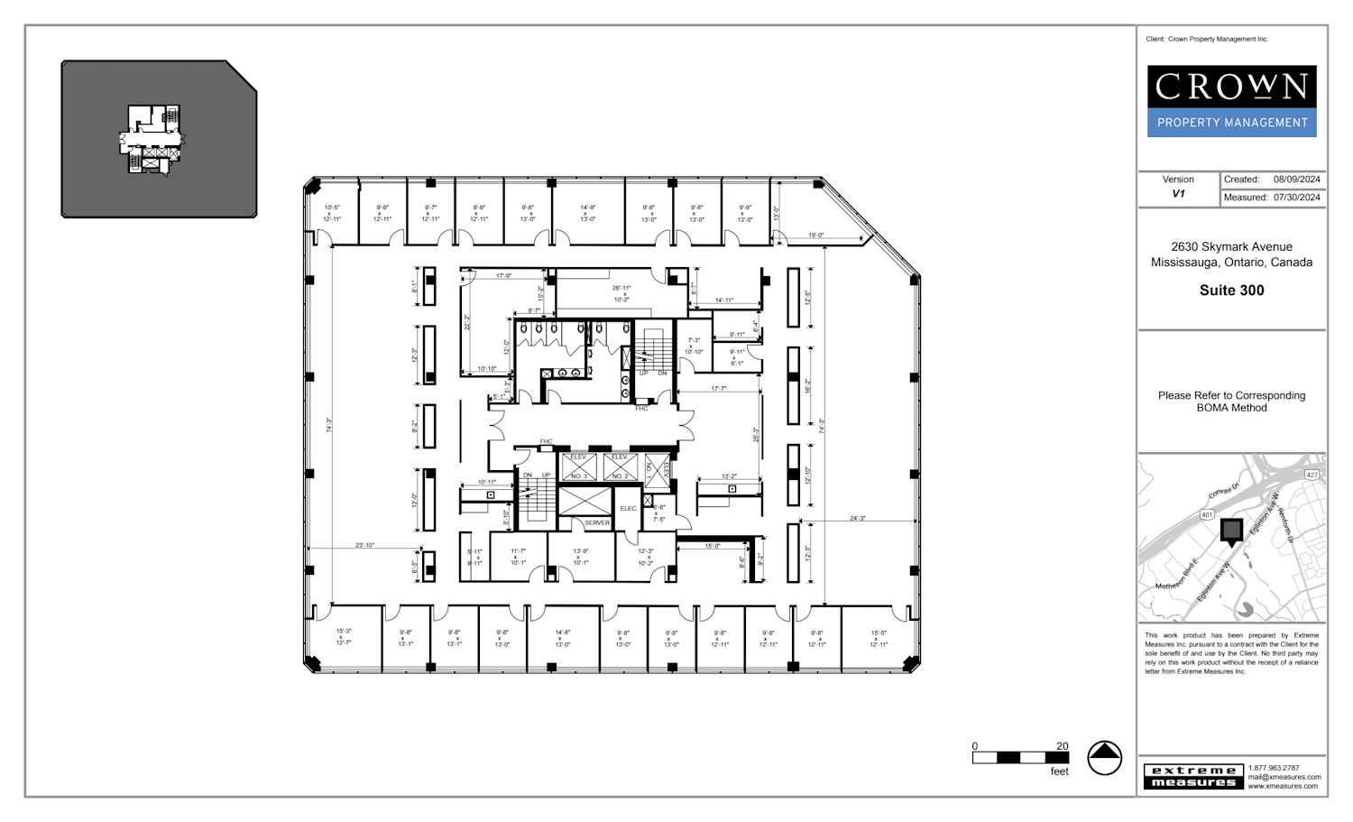
Listing image - Entire 3rd Floor, Suite 300 - Skymark Avenue - 2630 - 2680 Skymark Ave

Entire 3rd Floor, Suite 300

  • 13,178 - 31,850 sf
  • 88
13,178 sf pre-existing direct
Now
$19.50 sf/yr View Details
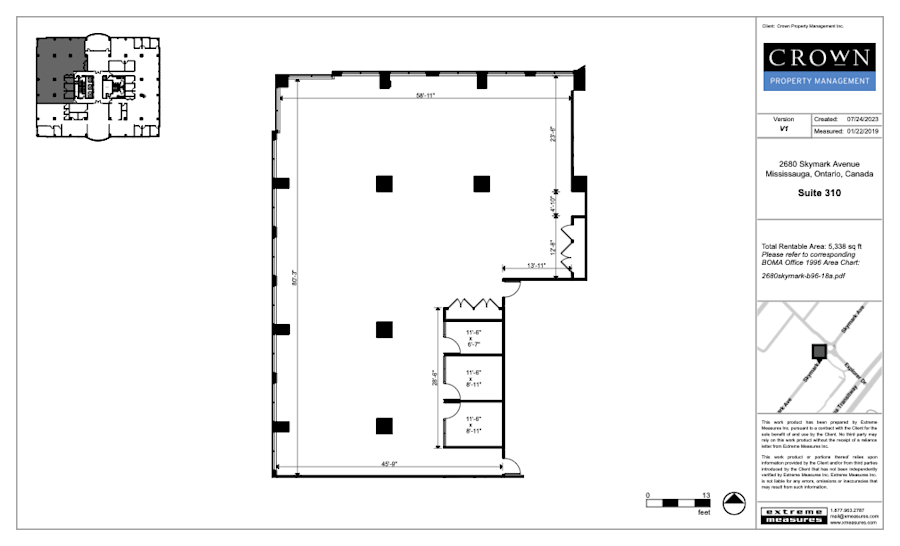
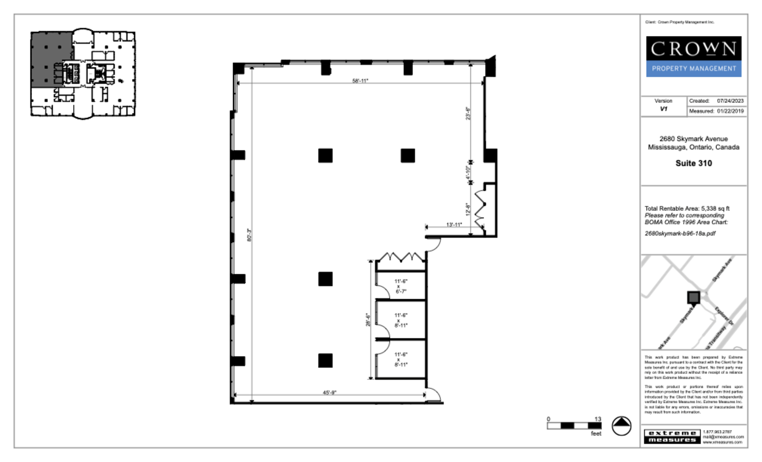
Listing image - Partial 3rd Floor, Suite 310 - Skymark Avenue - 2630 - 2680 Skymark Ave

Partial 3rd Floor, Suite 310

  • 36
5,340 sf pre-existing direct
Now
- View Details
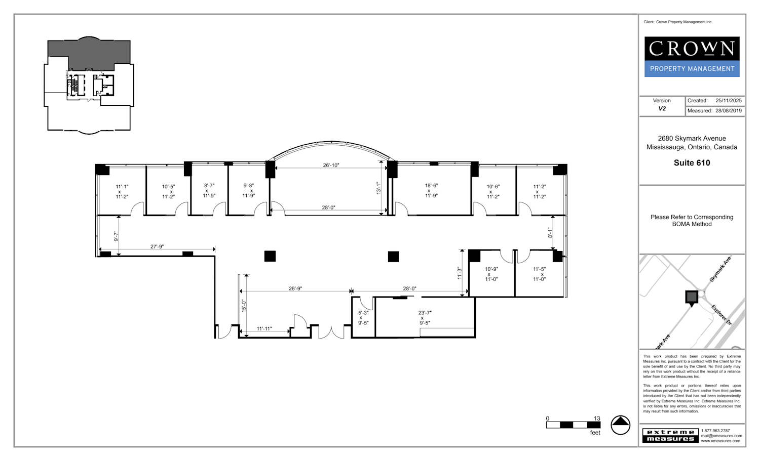
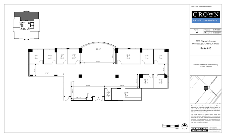
Floor plan - Partial 6th Floor, Suite 610 - Skymark Avenue - 2630 - 2680 Skymark Ave

Partial 6th Floor, Suite 610

  • 34
5,034 sf pre-built direct
Now
$22.50 sf/yr View Details
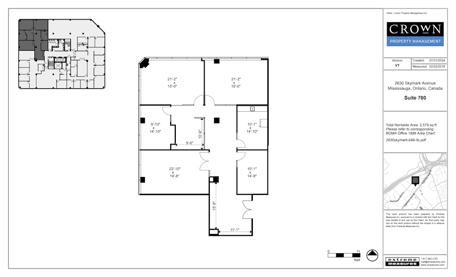
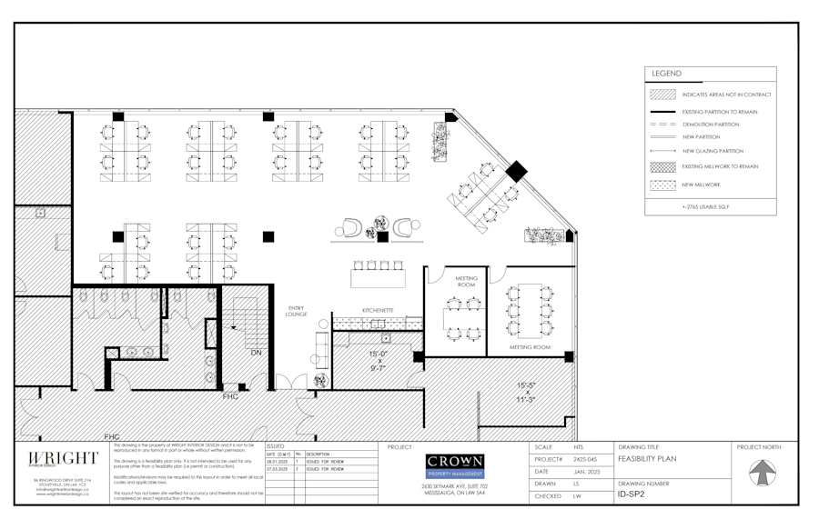
Listing image - Partial 7th Floor, Suite 700 - Skymark Avenue - 2630 - 2680 Skymark Ave

Partial 7th Floor, Suite 700

  • 2,584 - 11,262 sf
  • 17
2,584 sf pre-existing direct
Now
$19.50 sf/yr View Details
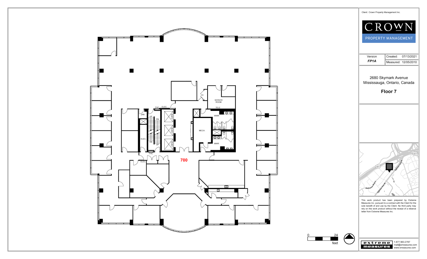
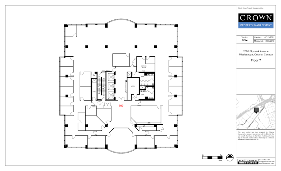
Listing image - Entire 7th Floor, Suite 700 - Skymark Avenue - 2630 - 2680 Skymark Ave

Entire 7th Floor, Suite 700

  • 102
15,361 sf pre-existing direct
Now
$22.50 sf/yr View Details
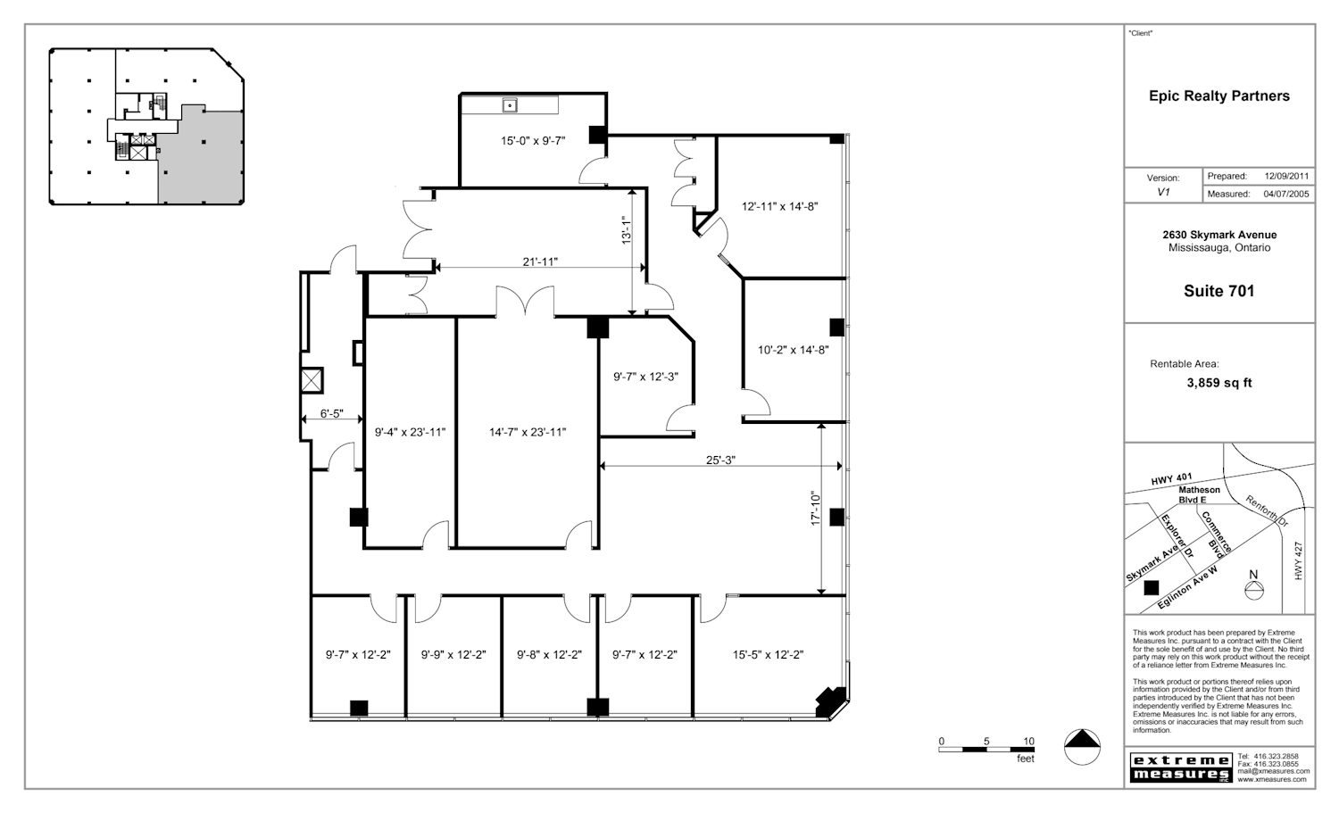
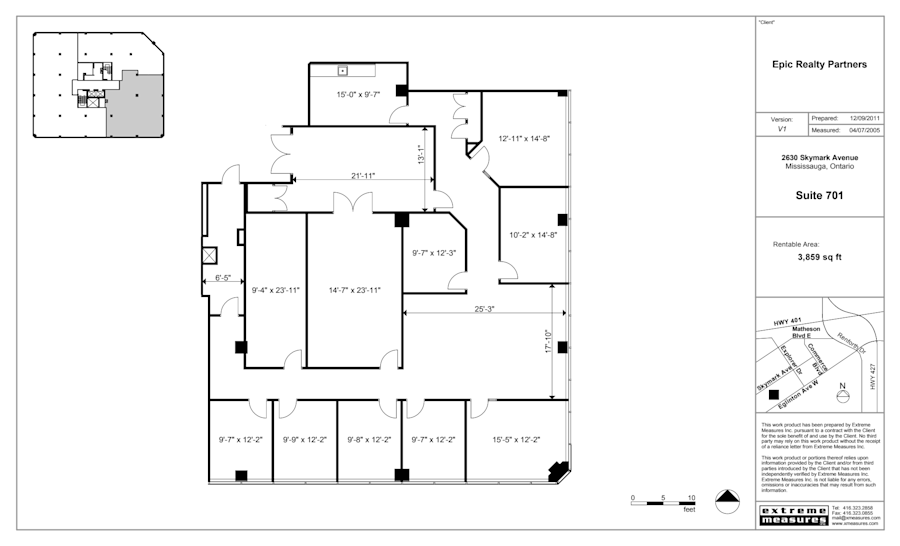
Listing image - Partial 7th Floor, Suite 701 - Skymark Avenue - 2630 - 2680 Skymark Ave

Partial 7th Floor, Suite 701

  • 3,883 - 11,262 sf
  • 26
3,883 sf pre-existing direct
2026-08-01
$19.50 sf/yr View Details
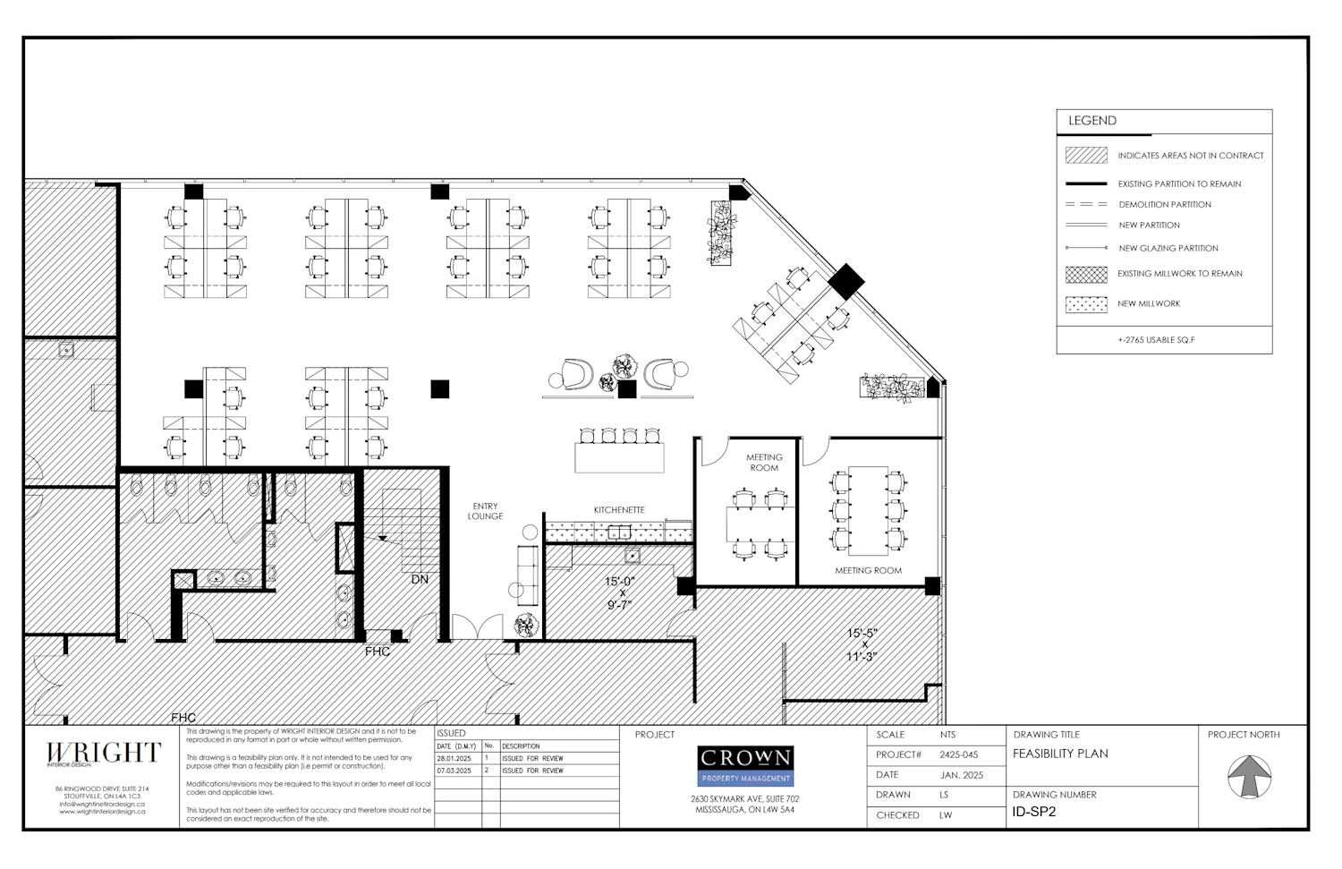
Listing image - Partial 7th Floor, Suite 702 - Skymark Avenue - 2630 - 2680 Skymark Ave

Partial 7th Floor, Suite 702

  • 3,317 - 11,262 sf
  • 22
3,317 sf pre-built direct
Now
$19.50 sf/yr View Details
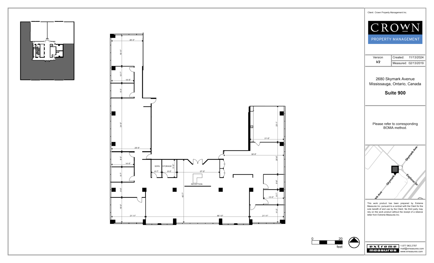
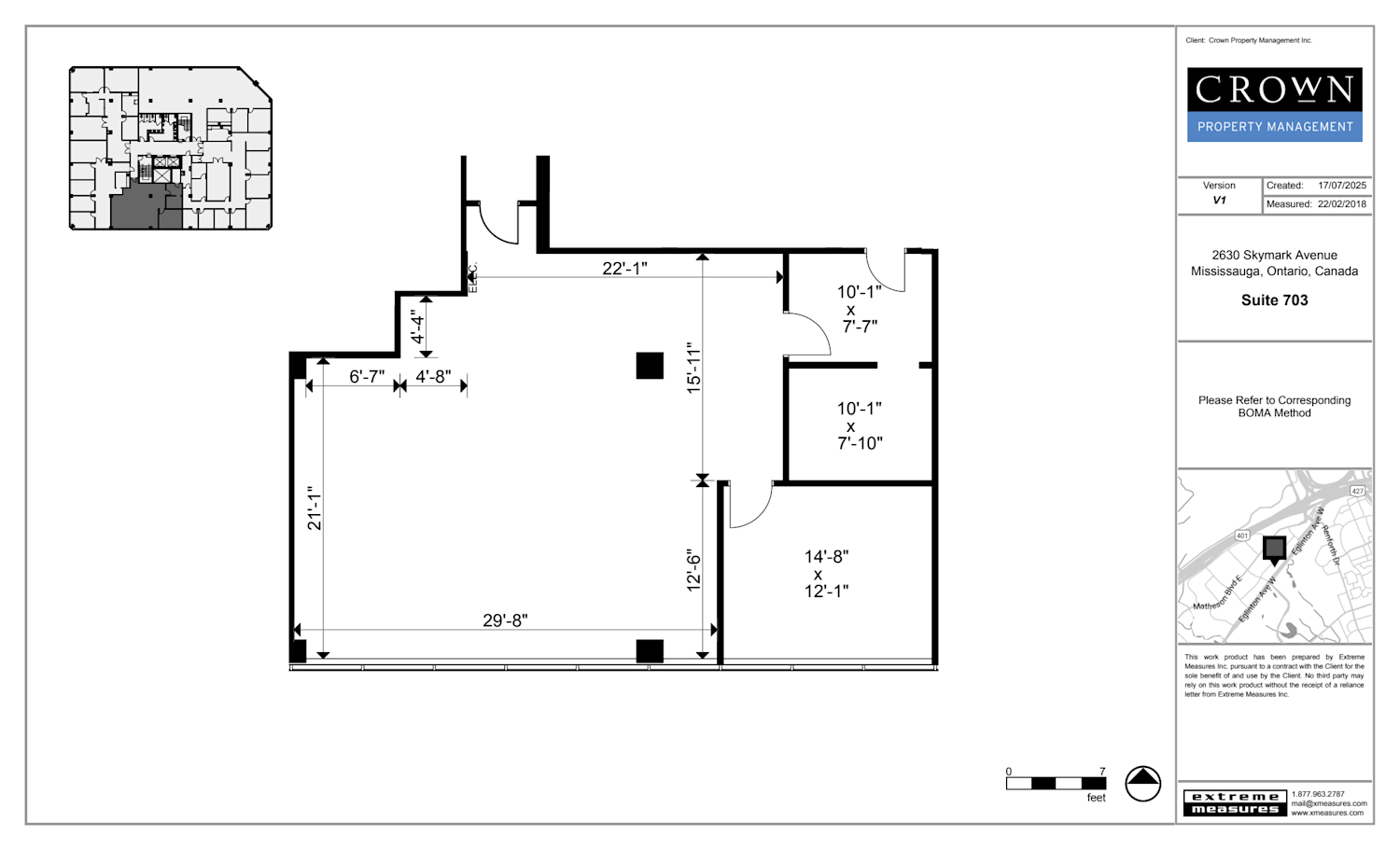
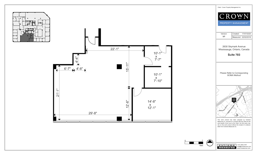
Listing image - Partial 7th Floor, Suite 703 - Skymark Avenue - 2630 - 2680 Skymark Ave

Partial 7th Floor, Suite 703

  • 1,478 - 11,262 sf
  • 10
1,478 sf pre-existing direct
Now
$19.50 sf/yr View Details
9,396 sf pre-existing direct
Now
$22.50 sf/yr View Details

Get In Touch!

If you would like more information about Skymark or if you’d like to arrange a tour, please contact: